MOSTAQBAL MOSTAQBALMOSTAQBAL
  • HOME
  • About
  • Specialties
  • Projects
    • Healthcare Facilities
    • Educational Facilities
    • Hospitality & Mixed Use
    • Private & Public Facilites
    • Industrial Cities & Facilities
    • Water & Waste Water
    • Transportation and Roads
    • Environmental Studies
    • Energy & Power
  • News
  • Join Us
  • Contact
Recycling Facility in Irbid
  • Location Irbid – Jordan
  • Client Istituto per la Cooperazione Universitaria Onlus ( ICU) Beneficiary of the project : Greater Irbid municipality (GIM)
  • Services • Full design including all executive drawings, and providing support in the preparation of the tender dossier for the contractor • Construction supervision works
  • Project Value 0.30 million JOD

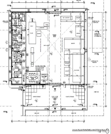
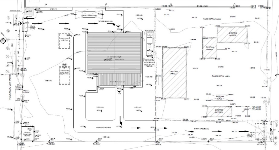
Recycling facility located on a land plot of 4,000 m2 at Irbid. The Recycling hanger sums up 600 m2 built up area and of 7 meters height, and includes recycling lines, offices, meeting room, WCs and showers, as well as an outdoor storage covered area. Works also External works including guard room waste water treatment plant (WWTP), water and wastewater underground tanks, asphalted roads, parking lots, and green areas.

Prev Next

 

 

Follow us

 
 

® Mostaqbal Engineering and Environmental Consultants 2026