MOSTAQBAL MOSTAQBALMOSTAQBAL
  • HOME
  • About
  • Specialties
  • Projects
    • Healthcare Facilities
    • Educational Facilities
    • Hospitality & Mixed Use
    • Private & Public Facilites
    • Industrial Cities & Facilities
    • Water & Waste Water
    • Transportation and Roads
    • Environmental Studies
    • Energy & Power
  • News
  • Join Us
  • Contact
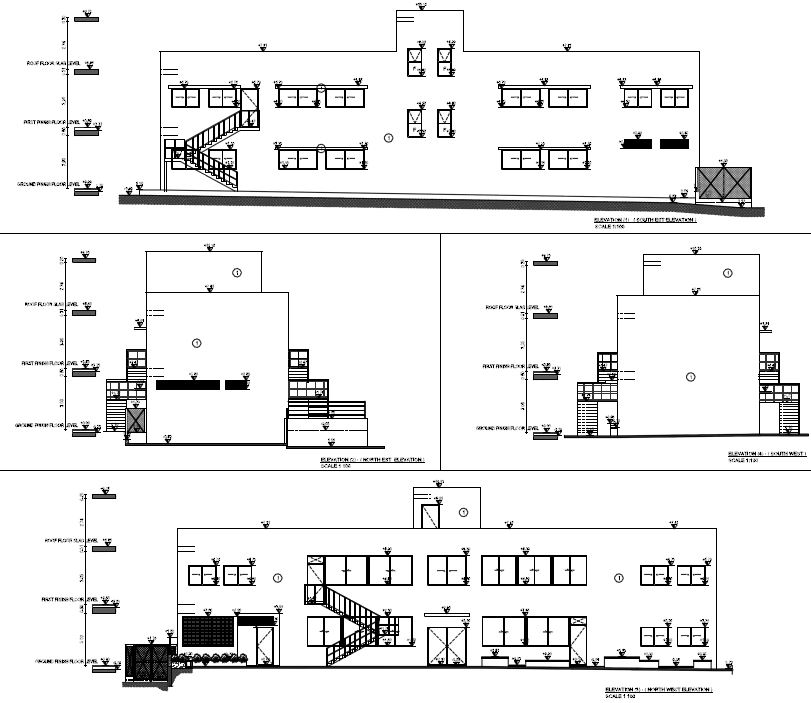
NRC Schools in the North of Jordan
  • Location Irbid – Jordan
  • Client Norwegian Refugee Council (NRC)
  • Services • Preparation of the studies, designs and tender documents • Construction Supervision
  • Project Value 2.9 million JOD

Additional classrooms and WC units to existing schools at Irbid Governorate, whereas the project was phased over three groups:

  • Group (A): included 6 schools with 3,865 m2 total extensions’ built up area
  • Group (B): included 4 schools with 2,952 m2 total extensions’ built up area
  • Group (C): included one school extension with 775 m2 built up area

Prev Next

 

 

Follow us

 
 

® Mostaqbal Engineering and Environmental Consultants 2026